Продажа здания

Тамбовская область, Рассказово г., Индустриальная ул., 2

6 999 000 ₽

6 607 ₽ за м²

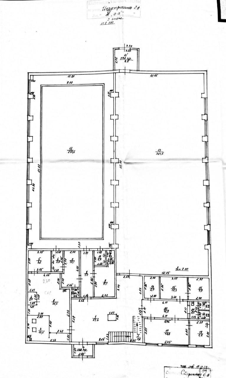
1 059 м²
Площадь
1/1
Этаж

Поделиться

Добавить в избранное

id:352.
Арт. 98262016 Продается здание бывшего спорткомплекса, площадью 1059.4 кв. м, Земельный участок площадью 28 сoток. Адрес: Тамбовская область, г. Рассказово, ул. Индустриальная, 2а. На данный момент, к коммуникациям не подключено. Зона П1 согласно ПЗЗ, есть ВРИ - "Магазины до 5000 м кв.". Звоните, чтобы узнать больше! Окажем юридическую помочь в сопровождении сделки. Так же проконсультируем и поможем провести сделку. Все виды страхования. Электронная регистрация.

Дата обновления: 7 ноября 2025